Along the levee
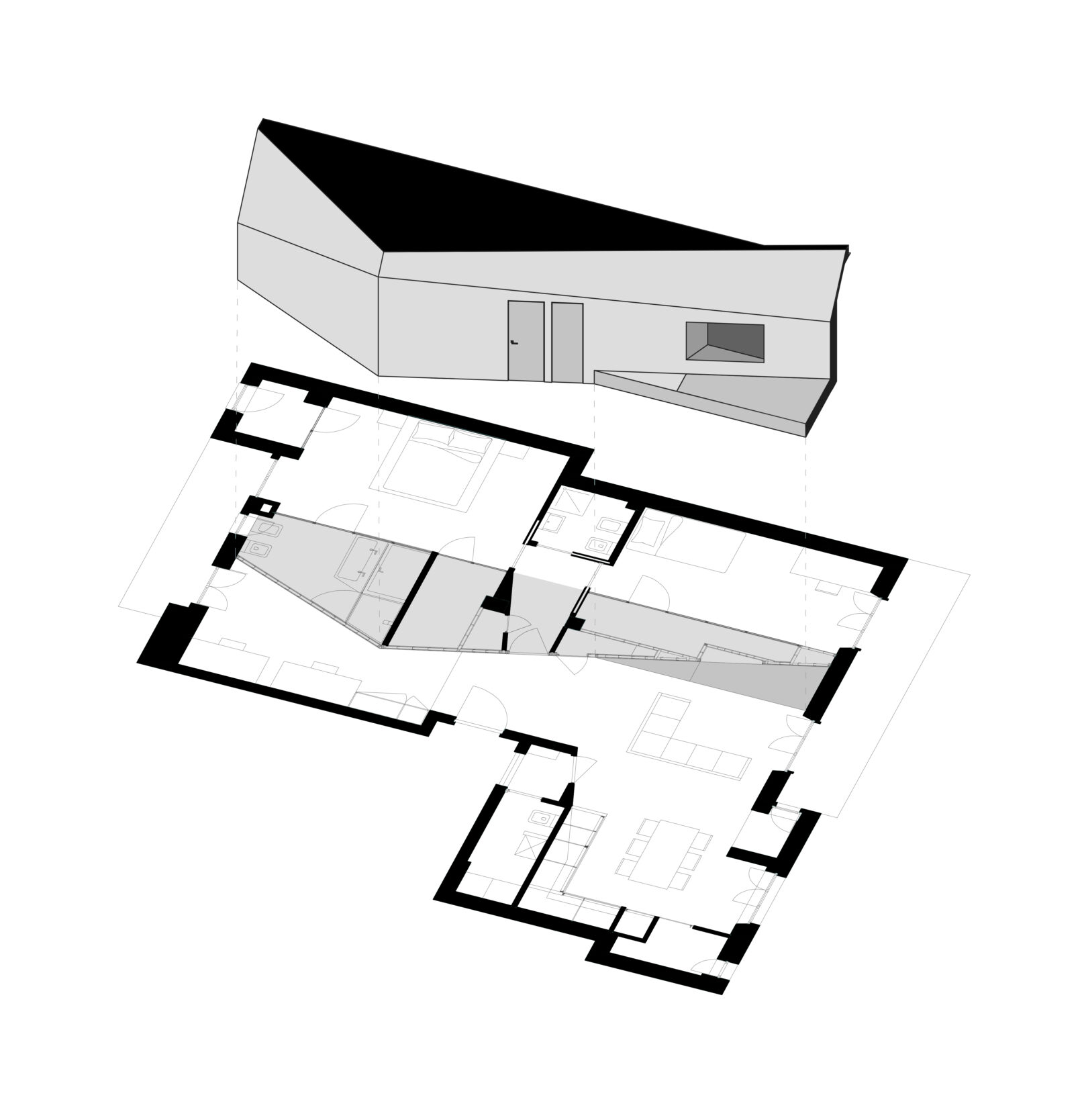
Il progetto nasce dalla necessità dei committenti di accorpare un bilocale e un trilocale in un unico immobile in grado di accogliere al meglio le nuove esigenze della famiglia. La strategia progettuale ha previsto una divisione netta fra la zona giorno e la zona notte dell’abitazione, dovendo anche ricavare all’interno dello schema distributivo un piccolo spazio per ospitare uno spazio ufficio per la sede amministrativa della società di famiglia.
Si è così scelto di definire spazialmente una sorta di paesaggio interno, attraverso l’inserimento di un prisma, un argine che divide ed al contempo cela le funzioni più eminentemente private dell’abitazione. Questo escamotage ci ha permesso di trattare la zona giorno come una sorta di esterno, uno scenario per le attività più sociali della famiglia.
Il fil rouge che lega “Along the levee” alle nostre precedenti realizzazioni è rappresentato anche dalla scelta dei materiali, che sono nuovamente elementi grezzi, sinceri, esaltati nella loro espressione più autentica. Una particolare attenzione è stata spesa nel loro accostamento armonico, spesso ottenuto attraverso contrasto: la matericità della terra cruda viene stemperata dal carattere etereo della resina, la brutalità del cemento viene mitigata dal calore del legno. Il cantiere ha espresso anche in termini processuali la nostra idea di progetto. E’ fondamentale a nostro giudizio l’integrazione e la contaminazione fra il lavoro sartoriale degli artigiani e, la competenza tecnica del progetto.
Località
Torino (TO)
Anno
2016
Tipologia
Residenziale
Superficie
150 m²
Stato
Costruito















