Spazio Mando
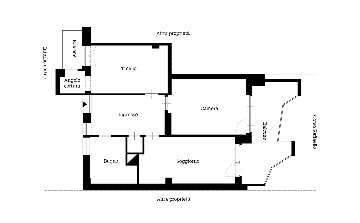
Spazio Mando rivisita in chiave contemporanea un appartamento torinese degli anni ’70 del Novecento, un periodo in cui si dava grande spazio alla zona d’ingresso e gli ambienti erano suddivisi secondo criteri funzionali. La scelta progettuale tende a scardinare questo assetto planimetrico, dando origine ad uno spazio fluido e continuo che apre le visuali verso le grandi finestre e la luce naturale. L’ingresso non è più considerato una camera delimitata da quattro pareti ma accoglie e indirizza verso lo spazio domestico, ricco di dinamicità e cromie inaspettate. Per poter comunicare quest’idea, è stato necessario rompere la linearità dell’assetto planimetrico e i toni neutri dell’abitazione, conferendogli una forte potenza espressiva, tagliente nelle linee e nella sua cromia. L’arredo fisso si configura come un grande oggetto multifunzione: la libreria in legno dell’entrata si articola in un divano su misura che definisce una zona intima e accogliente. La zona giorno è caratterizzata da un grande open-space in cui si trovano la sala da pranzo e il salotto affacciati sulla terrazza. La cucina è incassata, in una rivisitazione contemporanea dell’angolo cottura, che presenta un lato vetrato per dare più respiro verso il soggiorno. La camera da letto, cui si accede tramite una porta a scomparsa integrata nel volume d’ingresso, prende il posto del tinello verso l’interno cortile. Il vecchio angolo cottura si trasforma in piccolo studiolo per le occasioni di lavoro da casa.
Località
Torino
Anno
2022
Tipologia
Residenziale
Superficie
70 m²
Stato
Costruito
Ph
Marco Popescu











