Lago Maggiore
Il tema del recupero di questo edificio richiede necessariamente un confronto aperto con i lacerti di un’eredità, quella storica, per certi aspetti anche controversa, difficile da interpretare e oggi non così chiaramente identificabile per un suo reinserimento nella trasformazione e nel riuso dell’architettura. Tuttavia, è importante riconoscere, nel complesso architettonico, le valenze compositive di un’articolazione di spazi e volumi che forse meritano le maggiori attenzioni, forse anche più significative rispetto alla consueta conservazione dei caratteri storici e del restauro dell’architettura preesistente.
E’ in questo ambito che la proposta vuole inserirsi, dove le semantiche dell’architettura della casa preesistente si rapportano con un luogo, quello del lago, di grande pregio paesaggistico, oggi consolidato nella sua preziosa varietà di specie arboree autoctone, di indiscusso valore ambientale.
Per queste considerazioni, il lavoro progettuale muove dal riconoscere quei valori – non sempre evidenti -, ma da ricercare nelle maglie di un canovaccio complesso, eterogeneo, utili però ad alimentare le scelte architettoniche, le scelte del progetto. E’ un approccio interpretativo, di ricerca, anche sperimentale, i cui esiti non possono e non devono essere scontati, dove i nuovi segni cercano una relazione di compatibilità con il luogo, in un rapporto critico di continuità e di contiguità con il passato.
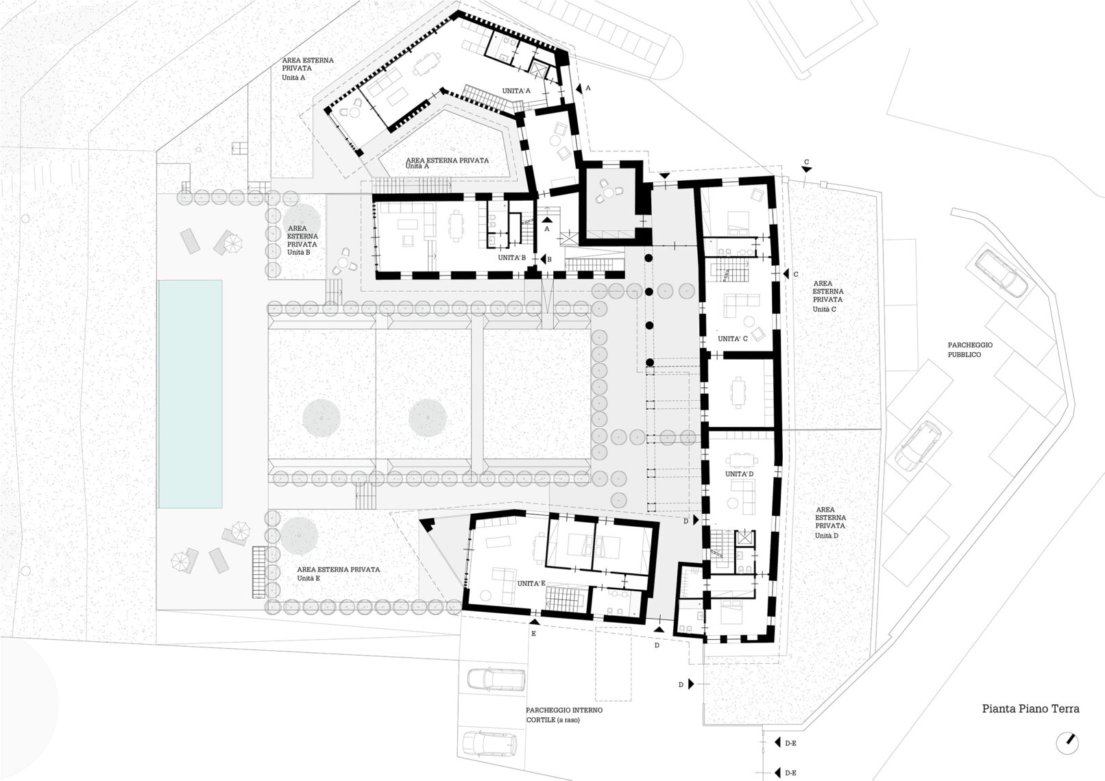
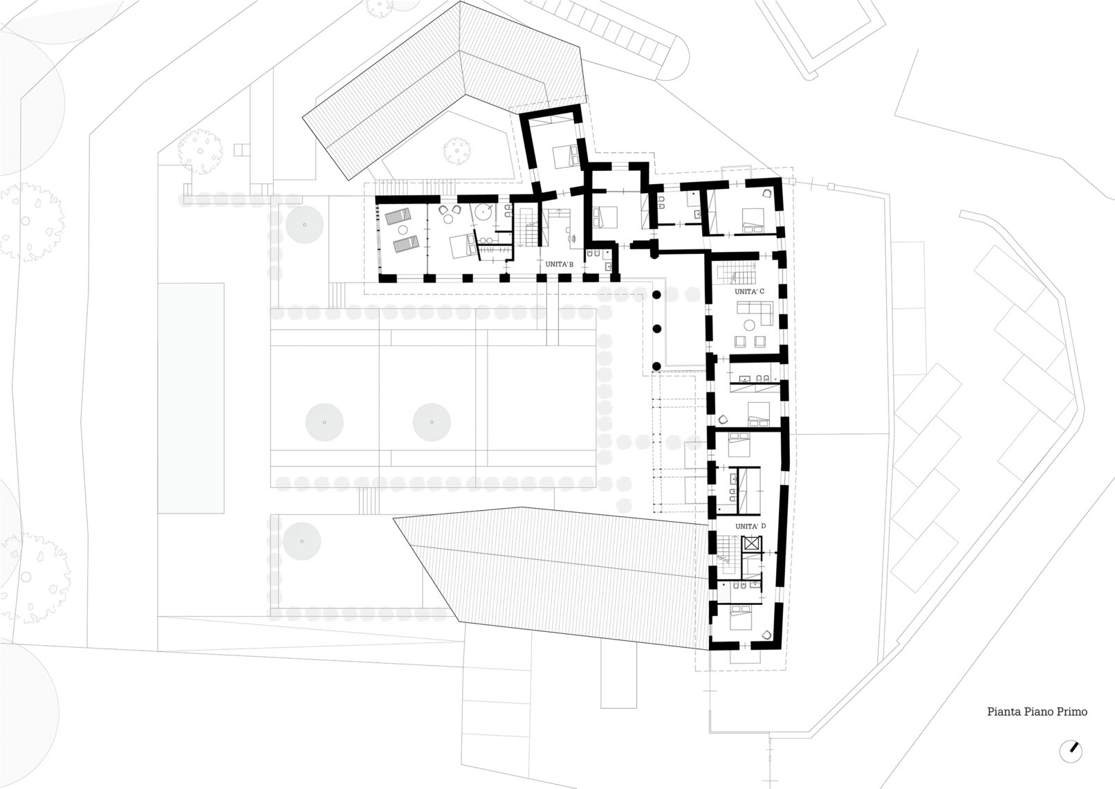
Ha così preso vita una architettura, che vorremmo tutta nuova, ma nello stesso tempo tutta uguale a quella preesistente. Un’architettura che è anche un paesaggio complesso, articolato, in più corpi costruiti, con superfici esterne di uso esclusivo, con visuali che disvelano sempre la presenza del lago. Le testate delle maniche che si protendono verso il lago sono “cannocchiali” che inquadrano il paesaggio e ospitano terrazzi e logge private.
Progetto
Baietto Battiato Bianco con R3architetti
Località
Leggiuno, Lago Maggiore
Anno
2023
Tipologia
Residenziale
Stato
Studio di fattibilità








